House on the Bluff
Chicago Northshore
Construction of this private residence was already underway when I joined the GLUCK+ team on site to assist with the construction management, interior detailing, finish selection, and systems coordination. A prime example of Architect-led-Design-build, the modern 27,000 square foot home is embedded into the bluff overlooking Lake Michigan.
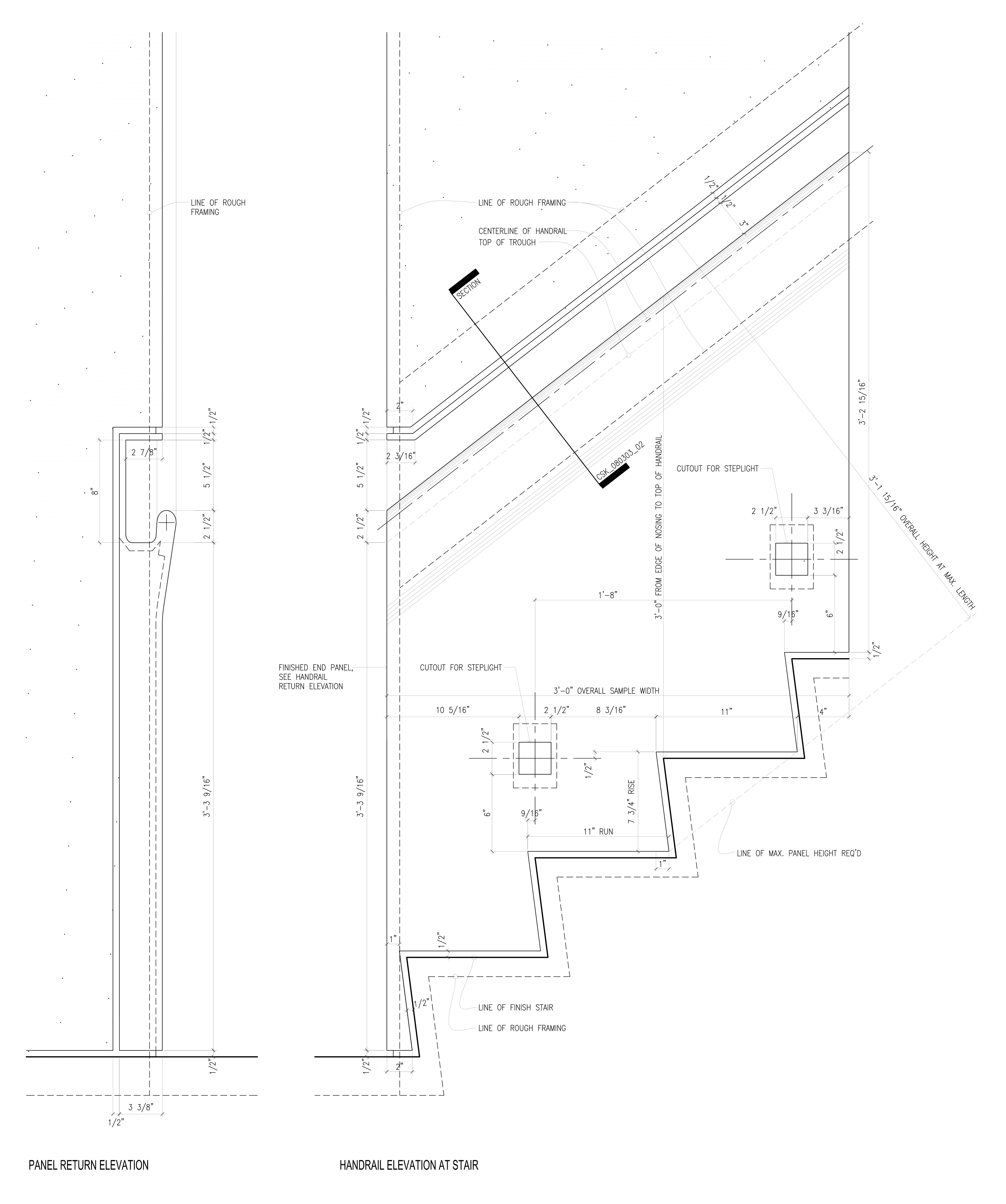
My responsibilities included the coordination and ordering of all electrical and plumbing fixtures; working directly with subcontractors to develop installation details; detailing of custom door hardware while working with the fabricator to leverage their capabilities; and the designing and detailing of custom plumbing fixtures, millwork and kitchen cabinetry.
Architect: GLUCK+
Chicago Northshore
Construction of this private residence was already underway when I joined the GLUCK+ team on site to assist with the construction management, interior detailing, finish selection, and systems coordination. A prime example of Architect-led-Design-build, the modern 27,000 square foot home is embedded into the bluff overlooking Lake Michigan.
My responsibilities included the coordination and ordering of all electrical and plumbing fixtures; working directly with subcontractors to develop installation details; detailing of custom door hardware while working with the fabricator to leverage their capabilities; and the designing and detailing of custom plumbing fixtures, millwork and kitchen cabinetry.
Architect: GLUCK+

jacob@chartoff.net LinkedIn
Copyright © 2025 Jacob Chartoff. All rights reserved.